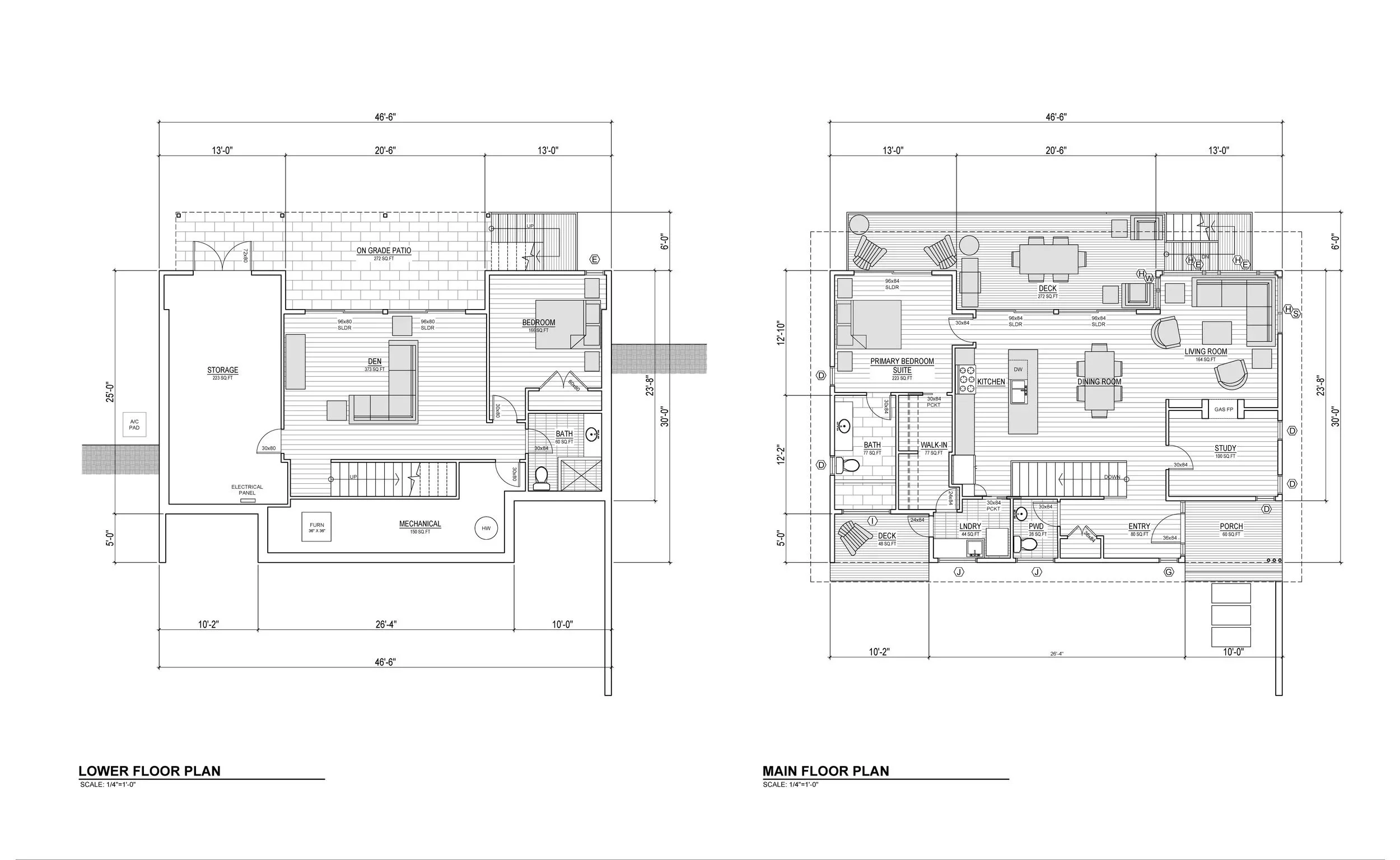
Colchester, VT Dennett Residence 2025 (Under Construction) Design development and construction documentation of a lakeside residence in Colchester, VT, in collaboration with JRMA. The two-story house sits on an existing footprint and features space for hosting family and therapy clients. View fullsize View fullsize View fullsize View fullsize