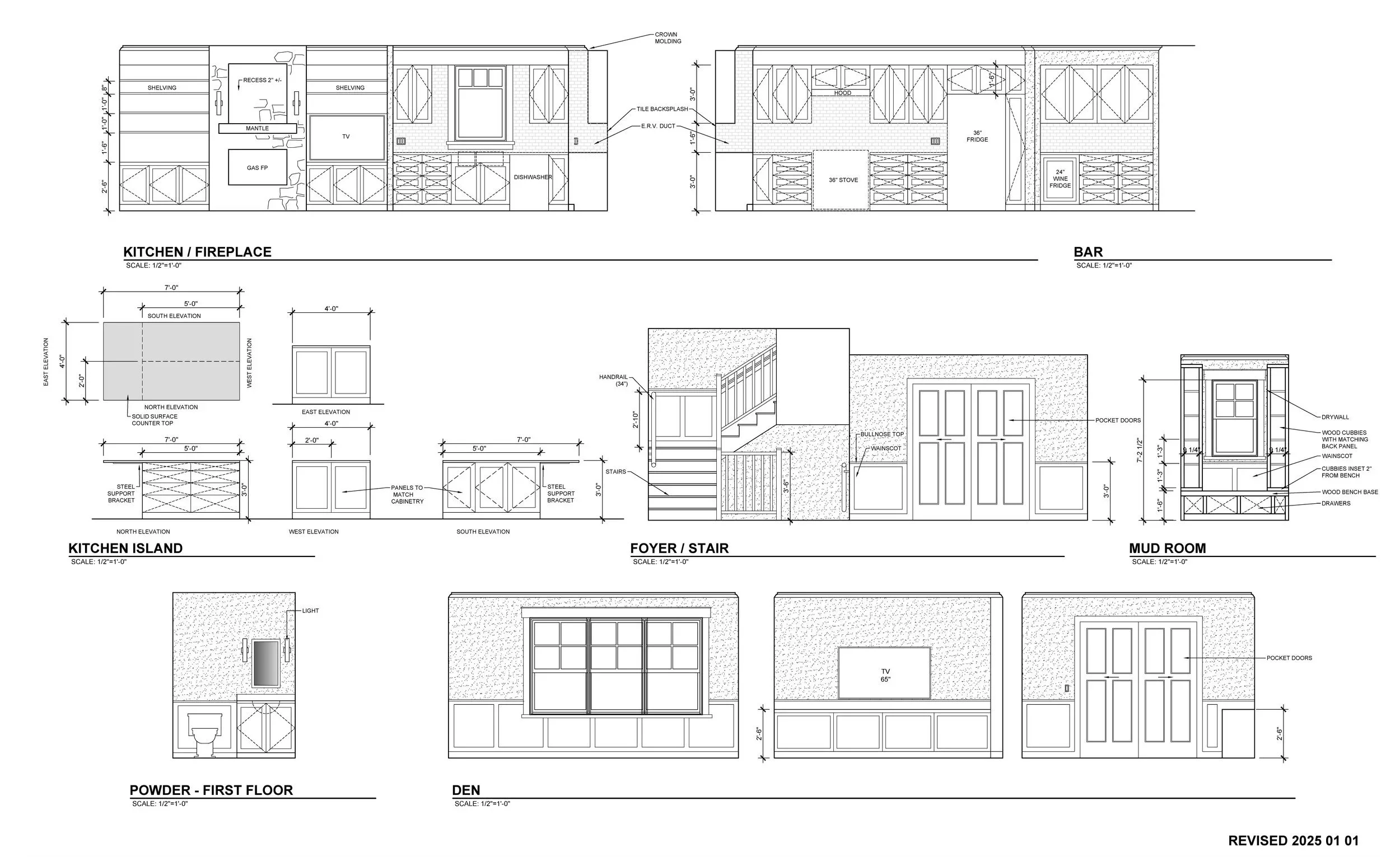
Briand Residence South Burlington, VT 2025 (Under Construction) Design development and construction documentation of a lakeside residence in South Burlington, VT, in collaboration with JRMA. House brings owners closer to the lake with maximal views from living area. View fullsize View fullsize View fullsize View fullsize View fullsize View fullsize